
STUDENTHOUSING
Student Living, Designed for Flexibility.
We design and deliver student housing through an advanced construction system that ensures efficiency, speed and quality living environments.
STUDENT HOUSING AT SCALE
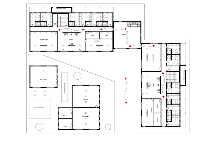
GammaBuild develops student residences designed to optimize space, costs and operational management while maintaining comfort and functionality.
- Optimization of living units and shared spaces
- Selection of durable, low-maintenance materials
- Design of functional and collaborative environments
- Planning of social areas and outdoor spaces
Choose view
ROOMS
GammaBuild system allows for the combination of different rooms types, meeting diverse needs while optimizing investment performance.
- Design flexibility to meet every requirement
- Space optimization and maximum functional efficiency
- Integrated living spaces solutions for comfort and shared living
Types of Rooms
Choose view
COMMON AREAS
GammaBuild offers solutions for the design of flexible and welcoming common areas, aimed at enhancing the user experience and promoting interaction, comfort, and functionality. Each space is optimized to ensure high aesthetic quality and efficient management.
- Definition of collective areas designed to promote sociality and relationships
- Configuration of functional, sharing-oriented common environments
- Use of durable materials, designed for intensive use and simplified handling
EVOLUTION OF CONSTRUCTIONS
AVERAGE CONSTRUCTION COST
Industrialized production and process control reduce waste and inefficiencies, directly impacting the overall cost of the project.
CONSTRUCTION SPEED
The factory-made construction of the elements allows for the construction phases to be anticipated and drastically reduced construction times, speeding up the delivery of the building.
DIMENSIONAL TOLERANCES
Production in a controlled environment guarantees millimetric precision, impossible to achieve with traditional processes performed entirely on site.
PREDICTABLE CONSTRUCTION SITE
Standardized and planned processes reduce operational variables, offering greater certainty regarding time, costs, and final quality of the work.
SUSTAINABILITY OF THE ENTIRE PROJECT
Reducing waste and reducing construction site work makes the construction process more environmentally efficient.
SYSTEM SCALABILITY
An industrialized system allows you to replicate the same level of quality on projects of different scales, maintaining consistent performance and reliable lead times even on large volumes.
CONSTRUCTION
NEW CONSTRUCTION SYSTEM
PreBuild ARMâ„¢ technology transforms construction into an industrialized, precise and controlled process, thanks to advanced robotics and reinforced concrete production.
- Robotized production
- millimeter precision
- reinforced concrete structure
- innovation and sustainability
EXTERIOR DESIGN
High-quality materials and modern architectural solutions enhance the beauty of the exteriors, offering welcoming and refined spaces, perfect for relaxation and conviviality.
INTERIOR DESIGN
GammaBuild develops integrated solutions that combine aesthetics, functionality, and durability, ensuring coherence between architecture, structure, and design.































